Zwei Premieren. Zwei Highlights: V3 Limited & Edition 900 II

Power Townhouse

Power Townhouse bauen mit Viebrockhaus

44

Das Power Townhouse von Viebrockhaus bietet eine einzigartige Kombination aus Komfort, Nachhaltigkeit und baulicher Variabilität. Die Modulbauweise ermöglicht eine flexible Kombination mehrerer Wohneinheiten mit Größen von rund 51 bis 96 Quadratmetern: Anpassungsfähige Grundrisse lassen keine Wohnwünsche offen. Das Haus kann mit einer schönen Klinker- oder Putzfassade gebaut werden, Zierschichten im Klinker sowie anthrazitfarbene Türen und Fensterrahmen sorgen für einen reizvollen Kontrast. Charmant: Die Giebel sind als Hollandgiebel ausgebildet und die gesamte hanseatische Architektur rundet das traditionelle Erscheinungsbild ab. Das Haus erfüllt höchste Nachhaltigkeitsstandards, erzeugt mit dem Power Roof eigenen Strom und verfügt über ein Gründach. Attraktiv und inklusive: die hochwertige Ausstattung mit Einbauküche, modernen Bodenbelägen und eigener Terrasse mit Garten.

Ein Musterhaus des Power Townhouse finden Sie in Hollenstedt (Niedersachsen, direkt an der A1 zwischen Bremen und Hamburg).

Verblendfassade Eingangsseite

Verblendfassade Eingangsseite
Putzfassade Eingangsseite

Verblendfassade Gartenseite

Verblendfassade Gartenseite
Putzfassade Gartenseite
Barrierefrei, kostengünstig und flexibel

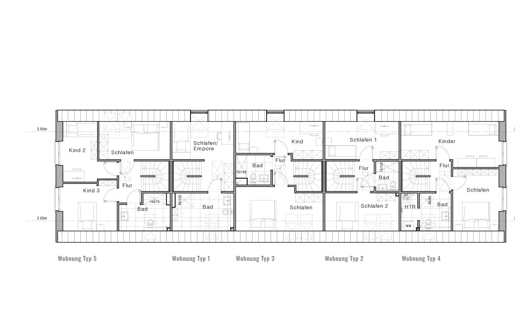
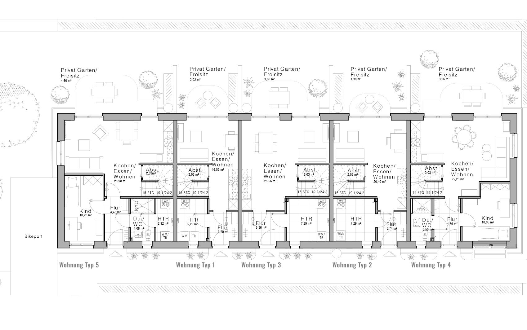
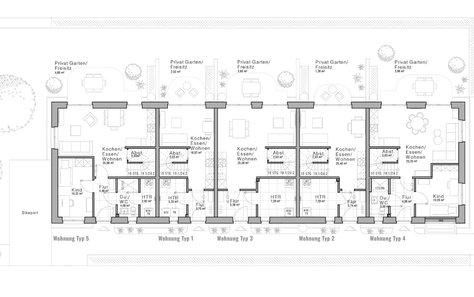
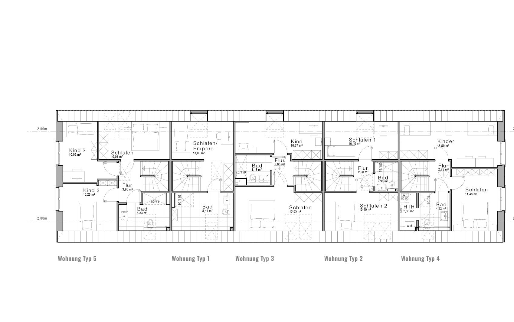
Die Grundrisse vom Power Townhouse

Jede der fünf möglichen Wohneinheiten bietet einen hohen Wohnkomfort für einen (Typ 1) bis fünf (Typ 5) Bewohner. Die Wohneinheiten sind einheitlich strukturiert:

Grundriss Power Townhouse Erdgeschoss
EG Typ 5, 1, 3, 2, 4

Erdgeschoss

Sie betreten die Wohnungen über einen Flur, der je nach Wohnungsgröße variiert. Bei geöffneter Flurtür bietet sich Ihnen der Blick auf den Wohnbereich und den dahinter liegenden Garten mit schöner Terrasse. Clever: der Abstellraum unter der Treppe ins Dachgeschoss. Im Mittelpunkt des Erdgeschosses steht der offene Raum, der Küche, Ess- und Wohnbereich miteinander verbindet: in der Single-Wohnung groß genug, um auch Gäste zu empfangen, in den Varianten mit mehr Quadratmetern perfekt für gemeinsame Aktivitäten und Familienzeit. Mit mehr Fläche werden die Räume größer und besonders komfortable Lösungen wie ein zusätzliches Zimmer im Erdgeschoss (Typ 5) oder ein WC (Typ 4, Typ 5) sind möglich. Kombinieren Sie nach Herzenslust und Ihren Bedürfnissen und werfen Sie auch einen Blick auf die Grundrissvarianten auf dieser Seite.

Roomtouren

Roomtour

Typ 1

EG 29,47 m2
DG 21,53 m2
Gesamt 51,00 m2

Loading...
Roomtour

Typ 2

EG 34,84 m2
DG 26,36 m2
Gesamt 61,20 m2

Loading...
Roomtour

Typ 3

EG 43,84 m2
DG 31,45 m2
Gesamt 75,29 m2

Loading...
Roomtour

Typ 4

EG 49,60 m2
DG 36,60 m2
Gesamt 86,20 m2

Loading...
Roomtour

Typ 5

EG 54,31 m2
DG 40,09 m2
Gesamt 94,40 m2

Loading...

Innenansichten

Viebrockhaus Power Townhouse Wohnzimmer
Viebrockhaus Power Townhouse Schlafzimmer
Viebrockhaus Power Townhouse Kinderzimmer
Viebrockhaus Power Townhouse Schlafzimmer
Viebrockhaus Power Townhouse Wohn-Essbereich
Viebrockhaus Power Townhouse Badezimmer

Unsere Power Townhouses: Alles Wichtige im Überblick

Unsere Power TownHouses sind die ideale Kombination aus Qualität und Kosteneffizienz, sie verbinden die Robustheit der massiven Bauweise mit der Flexibilität der modularen Planung. Lesen Sie hier alles Wichtige zum Hintergrund – von der feierlichen Eröffnung unseres ersten Power Townhouses im Jahr 2024 bis hin zu den Möglichkeiten für den sozialen Wohnungsbau, die das Konzept bietet!

73 Tage von der Grundsteinlegung bis zur Fertigstellung - mit der Fertigstellung unseres ersten Power Townhouses unterstreichen wir einmal mehr unseren Pio­nier­geist und Tatkraft.
Viebrockhaus Power Townhouse Einweihung
Der Bedarf an praxistauglichen Wohnkonzepten für den sozialen Wohnungsbau war noch nie so groß wie heute. Neue Lösungen sind gefragt, die mehrere Ziele gleichzeitig erfüllen.
Power Townhouse

Gute Gründe für ein Power Townhouse von Viebrockhaus

Unsere Power Townhouses haben unterschiedlich große Grundrisse und ein ausgesprochen elegantes Äußeres. Das Power Townhouse ist ein wegweisendes Konzept für den sozialen Wohnungsbau in Deutschland. Es ist architektonisch ansprechend, nachhaltig und energieeffizient. Jedes Power Townhouse vereint ein ganzes Bündel innovativer lnklusivleistungen: 

  • Wohnflächen von 51 bis 95 m² (gem. WoFIV)
  • Durchschnittliche Bauzeit von ca. 4 Monaten (garantierter Einzugstag)
  • Putz- und Verblendfassade zur Auswahl
  • Eingeschossiger Baustil
  • Energieeffizienzklasse A+
  • Extralange Garantie von 10 Jahren
  • Nachhaltig gebaut
Loading...
Jetzt buchen

Beratung und Musterhaus-Besuch

Die Power Townhouses von Viebrockhaus sind die Lösung für alle Fragen, die sich Kommunen und Investoren im sozialen Wohnungsbau stellen. Viebrockhaus hat das geballte Know-how seiner bewährten Systemhaus-Massivbauweise auf den sozialen Wohnungsbau übertragen. Kompetenz, Qualität und ein klarer Fokus auf Nachhaltigkeit sind die Erfolgsfaktoren.

Erfahren Sie mehr zum Power Townhouse und starten Sie mit uns Ihre Planung.

So bauen wir für Sie

Vorteile eines Power Townhouses von Viebrockhaus

Wenn Sie sich für ein Power Townhouse von uns entscheiden, genießen Sie eine Reihe einzigartiger Vorteile:

  • Verbindliche Bauzeit - Im Rahmen unseres Viebrockhaus-Versprechens teilen wir Ihnen noch vor dem ersten Spatenstich das genaue Datum und die Uhrzeit für die schlüsselfertige Übergabe Ihres Power Townhouses mit.
  • Rundum-Sorglos-Service - Mit Viebrockhaus bauen Sie Ihr Haus in kürzester Zeit und mit einem beruhigendem Rundum-Sorglos-Service. Bereits beim Bauantrag unterstützen wir Sie, kümmern uns um wichtige Behördengänge und begleiten Sie weit über die Schlüsselübergabe hinaus.
  • Sicherheitsversprechen - Unsere Häuser sind massiv gebaut, sodass sie über Generationen hinweg wertbeständig sind. Und wir bieten Ihnen alle Garantien und Sicherheiten, die Sie für den Hausbau benötigen. Auf Nummer sicher gehen Sie mit uns aber nicht nur bei der Planung, sondern auch bei Themen wie der Finanzierung, der Wahl Ihrer Energietechnik und beim Bau selbst.
  • Hohe Qualität - Wir bauen für Sie ein wertbeständiges Haus traditionell Stein auf Stein. Die massive Bauweise garantiert nicht nur einen besseren Schall- und Brandschutz, sondern sorgt auch für ein angenehmes Raumklima. Bei Baustoffen und der Innenausstattung vertrauen wir auf bewährte Markenqualität.

Serienzertifiziert

Das Power Townhouse ist das erste Haus im sozialen Wohnungsbau in Deutschland, das ein Serienzertifikat erhält. Der unschätzbare Vorteil: Dank der Zertifizierung können neue Power Townhouses in ganz Deutschland mit minimalem bürokratischem Aufwand gebaut werden.

Serienzertifiziert

Energieeffizient

Das Haus wird in der Effizienzhaus-Stufe 40 und in der Grundausstattung QNG-konform gebaut. Power Townhouses von Viebrockhaus verfügen über ein Satteldach, das auf einer Seite vollständig mit einer 30 kWp Photovoltaikanlage belegt ist. Dieses Power Roof besteht aus hochmodernen, nahtlos integrierten Solarmodulen. Für angenehme Wärme und niedrigen Verbrauch sorgt eine eigene kleine Wärmepumpe in jeder Wohneinheit.

Energieeffizient

Starkregensicher

Die Bauweise der Power Townhouses schützt die Gebäudehülle nachweislich (mit Zertifikat) vor Starkregen. Das macht die Häuser auch bei extremen Wetterereignissen sicher für ihre BewohnerInnen. Auch das Gründach ist Teil dieses Konzeptes: Es reduziert die Versiegelung des Grundstücks, fördert die Artenvielfalt, reduziert die sommerliche Hitzeentwicklung und kann Wasser speichern.

Starkregensicher

Garantiert

Viebrockhaus ist bei Garantieleistungen führend in der Branche. Die 10-Jahres-Garantie auf das Gebäude und seine Ausstattung, die für die Einfamilienhäuser von Viebrockhaus gilt, gilt auch für das Power Townhouse.

Garantiert

Schnell gebaut

Die serielle Planung ermöglicht eine flexible Kombination von Wohnungsgrößen von 51 m² bis 95 m². Die Bauzeit je Power Townhouse mit bis zu 5 Wohneinheiten, beträgt 4 Monate. Für jedes weitere Power Townhouse, mit bis zu 5 Wohneinheiten, verlängert sich die Bauzeit um einen weiteren Monat.

Schnell gebaut

Nachhaltig

Das Power Townhouse erfüllt die höchsten Nachhaltigkeitsstandards der KfW-Bankengruppe. Viebrockhaus verwendet ausschließlich ressourcenschonende sowie energieeffiziente Baustoffe und verwendet dabei einen hohen Anteil an recycelten Materialien.

Nachhaltig
Der Viebrockhaus-Katalog

Der Viebrockhaus-Katalog

Bestellen Sie unseren kostenlosen Katalog, in welchem Sie auf über 300 Seiten alles Wissenswerte rund um unsere Häuser und Leistungen finden!