💥 Hauseigentum ab 1.716 €* monatlich

Gratis-Katalog anfordern
Ideale Grundrisse für zwei Familien

Doppelhaus-Grundrisse  

Ähnlich wie Einfamilienhäuser, aber mit einigen Besonderheiten: Wer plant ein Doppelhaus zu bauen, braucht einen passenden Grundriss. Sie suchen nach Inspiration für Ihr individuelles Traumhaus, Wand an Wand mit Ihren NachbarInnen? In unseren durchdachten Grundrissen für Doppelhäuser finden Sie jede Menge Ideen. Anschließend verwenden ihn unsere ArchitektInnen als Basis für Ihre persönlichen Anforderungen. Viebrockhaus wünscht viel Erfolg bei den ersten Planungen – wir beraten Sie gern!

Planung Grundriss Einfamilienhaus

Doppelhaus-Grundrisse mit rund 120 qm

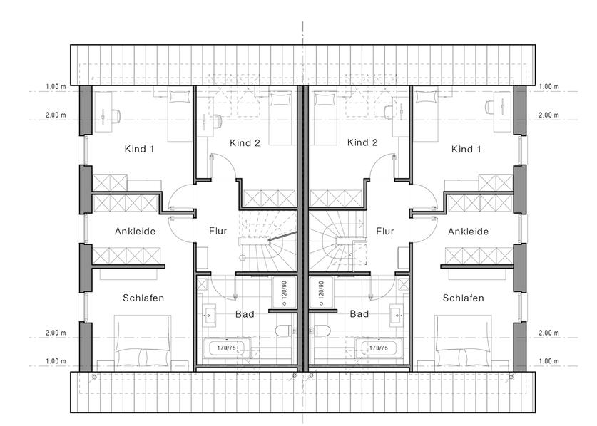
Unsere Eigenheime für zwei Parteien überzeugen nicht nur durch ihre hochwertige Bauweise und Ausstattung – auch unsere durchdachten, modernen Grundrisse für unsere Doppelhäuser lassen keine Wünsche offen: Sie bieten jede Menge Raum für den Alltag und sorgen durch Features wie zahlreiche, oft bodentiefe Fenster für eine wohnliche, luftige und einladende Atmosphäre. Unser Maxime 1000 D etwa hat einen sehr geräumigen, offenen Wohn-Ess-Koch-Bereich im Erdgeschoss und bietet ein besonderes Highlight im Obergeschoss: Die Badewanne direkt unter dem Fenster erlaubt einen wahrhaft himmlischen Ausblick. Gestalten Sie die Immobilie ganz nach Ihren Anforderungen: Das Dachgeschoss kann nach Bedarf ausgebaut werden. Unser größter Doppelhaus-Grundriss gehört zum Maxime 1020 D: Die Raumaufteilung ist besonders familientauglich, ein Arbeitszimmer in ruhiger Lage ist hier ebenfalls eingeplant.

Grundriss Doppelhaus Maxime 1020D
Grundriss Doppelhaus Maxime 1020D

Kompakte Doppelhäuser für kleine Grundstücke

Sie möchten Platz sparen, ohne auf Komfort und hochwertige Qualität zu verzichten? Unsere Doppelhäuser mit kleinerer Grundfläche sind dafür optimal geeignet. Der Grundriss für unser Doppelhaus Maxime 1010 D sieht nur eine Breite von rund 6 Metern vor. Trotzdem profitieren Sie von rund 100 qm Wohnfläche. Die luftige, offene Atmosphäre wird nicht nur durch bodentiefe Fenster unterstützt, sondern auch durch die offene Treppe zwischen Wohnbereich und Dachgeschoss. Für noch mehr Platz können Sie bei Bedarf den Spitzboden ausbauen lassen. Auch unser Maxime 800 D haben wir speziell für kleinere Grundstücke konzipiert, während der Grundriss ein offenes Wohnkonzept unterstützt.

Grundriss Maxime 1010D Doppelhaus
Grundriss Maxime 1010D Doppelhaus
Gut zu wissen

Der passende Grundriss für jeden Haustyp von Viebrockhaus 

Sie haben noch nicht entschieden, welchen Haustyp Sie bauen möchten? Dann schauen Sie auch bei unseren Grundrissen für Einfamilienhäuser vorbei! Auch unsere Grundrisse für Zweifamilienhäuser liefern möglicherweise Alternativen für Ihre Doppelhaus-Pläne. Ihr schlüsselfertiges Doppelhaus von Viebrockhaus planen wir ganz nach Ihren individuellen Anforderungen. Unsere Grundrisse dienen dabei als Grundlage, können aber selbstverständlich auf Ihre Bedürfnisse angepasst werden. Viele BauherrInnen entscheiden sich für ein Doppelhaus, um sich mit der Partei des angrenzenden Hauses organisatorisch und finanziell zusammenzuschließen. Auf Wunsch lässt sich aber der Grundriss jeder Wohnhälfte auch komplett unabhängig gestalten. Jede Menge Inspirationen und unser gesamtes Massivhaus-Portfolio finden Sie in unserem Katalog!

Informieren Sie sich über unsere durchdachten Grundrisse für Einfamilienhäuser – abgestimmt auf die individuellen Bedürfnisse und Wohnideen von Familien.
Grundriss eines Einfamilienhauses von Viebrockhaus
Entdecken Sie unsere vielseitigen Grundrisse für Bungalows. Ob barrierefrei, geräumig oder kompakt – wir ermöglichen modernes Wohnen auf einer Ebene.
Grundriss eines Bungalows von Viebrockhaus
Lassen Sie sich von unseren Grundrissen für eine Stadtvilla inspirieren. Wir bieten Ihnen die ideale Lösung für urbanes Wohnen auf bis zu 190 qm.
Grundriss einer Stadtvilla von Viebrockhaus
Entdecken Sie unsere durchdachten Grundrisse für Zweifamilienhäuser – flexibel, effizient und auf die Bedürfnisse von zwei Familien abgestimmt.
Grundriss eines Zweifamilienhauses von Viebrockhaus
Der Viebrockhaus-Katalog

Der Viebrockhaus-Katalog

Bestellen Sie unseren kostenlosen Katalog, in welchem Sie auf über 300 Seiten alles Wissenswerte rund um unsere Häuser und Leistungen finden!