💥 Hauseigentum ab 1.716 €* monatlich

Gratis-Katalog anfordern
Edition 490
Einfamilienhaus

Edition 490

Das Edition 490 besticht durch die schicke Stadthausoptik und das markante Ziermauerwerk. Einzigartig wird es durch den asymmetrisch angeordneten Zwerchgiebel. Machen Sie »Ihr« Haus daraus: Mit Dachüberständen, unterschiedlichen Fassaden oder auch mit der Richtung des Treppenaufgangs bestimmen Sie Ihr persönliches Wohnerlebnis. Der seitlich der Mitte platzierte Satteldach-Zwerchgiebel wird markant mit Lisenen betont. Die Anordnung der Fenstertüren erzeugt dabei ein harmonisches Gleichgewicht dieser bewusst gewählten Asymmetrie.
 

Hinweis: Bilder zeigen zum Teil auf- oder minderpreispflichtige Ausstattungsmerkmale.

Merkmale

  • 181,84 m²
  • 9,10 x 13,55 m
  • 2 Badezimmer
  • 3 Schlafzimmer
  • Satteldach
  • 37°
  • 152 cm
  • Effizienzhaus-Stufe 40
  • Photovoltaik
  • Hybrid-Smart-Air 3.0
  • Smart-Home-Ausstattung: KNX-Basispaket
Highlights

Großartig im Detail

Ess- und Kochbereich

Fenster-Eckelement beim Edition 490
Viele bodentiefe Fenster/Glasfassade beim Edition 490
Zwerchgiebel beim Edition 490
360° Touren und Varianten

Ihr Lebensraum - Ihr Zuhause

360° Tour

Konfigurieren Sie hier Ihr Viebrockhaus
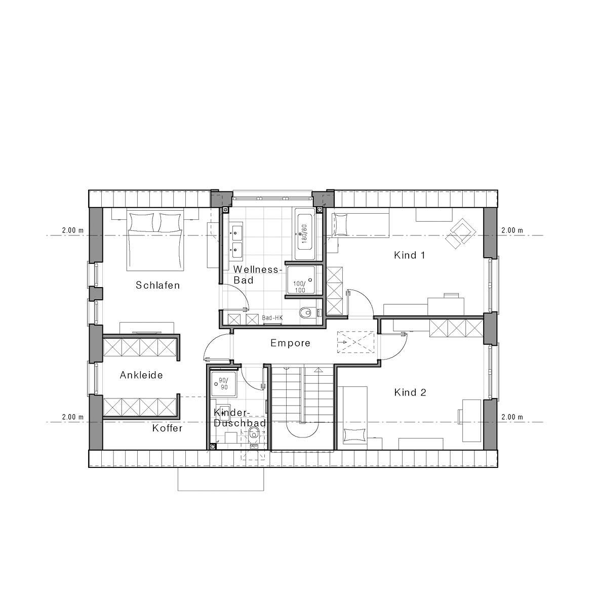
Grundriss

Von Grund auf durchdacht

Erdgeschoss

Mittelpunkt des Wohnbereichs ist die Essdiele: Sie bildet den Dreh- und Angelpunkt für alle Bereiche im Erdgeschoss. Die Küche erhält den prominentesten Platz im Haus: Sie ist hell und lichtdurchflutet. Der Wohnbereich dient als Rückzugsort. Alle Räumlichkeiten sind über offene Durchgänge miteinander verbunden.

 

Wandelbar ist in diesem Haus auch der Grundriss. Sie entscheiden, ob die Treppe in der Essdiele liegt oder, um 90 Grad gedreht, vom Windfang betreten werden soll.

Grundriss Erdgeschoss eines Einfamilienhauses Edition 490 von Viebrockhaus

Raum

Wohnfläche

Gesamt

97,8 m²

Wohnen

22,04 m²

Essdiele

23,77 m²

Kochen

18,42 m²

Arbeiten

10,46 m²

WC

2,78 m²

Windfang

7,72 m²

HTR

12,61 m²

Ähnliche Häuser

Entdecken Sie weitere Häuser dieser Kategorie

Wer ein eher kleines Grundstück besitzt und Platz sparen will, wird den Eingang auf der Giebelseite lieben– er ist auch gestalterisch ein Highlight. Der Grundriss bietet einige Raffinessen,

  • 114 m²
  • 8,10 x 10,00 m
  • Satteldach, 40°
  • Effizienzhaus-Stufe 40
  • Photovoltaik
  • Smart-Home-Ausstattung
  • Kompakt-Smart-Air 2.0
Frontansicht eines Einfamilienhauses mit Carport und Eingangstür. Es handelt sich um das V6 von Viebrockhaus
Loading...

Unser zukunftssicheres Familienhaus bietet alles, was eine vierköpfige Familie braucht - vor allem dank der durchdachten Grundrisse. Das klassische Satteldach mit den schönen Gesimsen an der Traufseite strahlt Gemütlichkeit aus.

  • 123,4 m²
  • 8,10 x 10,65 m
  • Satteldach, 40°
  • Effizienzhaus-Stufe 40
  • Photovoltaik
  • Kompakt-Smart-Air 2.0
  • Smart-Home-Ausstattung
Einfamilienhaus mit Ansicht aus dem Garten. Das Einfamilienhaus hat bodentiefe Fenster und nennt sich V5 von Viebrockhaus
Loading...

Das Maxime 200 ermöglicht ein offenes Wohnkonzept auf rund 127 Quadratmetern. Pfiffige Lösungen wie eine separate Garderobe und eine Ankleide sorgen für ein aufgeräumtes, luftiges Wohngefühl.

  • 126,61 m²
  • 8,10 x 11,00 m
  • Satteldach, 40°
  • Effizienzhaus-Stufe 40
  • Photovoltaik
  • Hybrid-Smart-Air 3.0
  • Smart-Home-Plus-Ausstattung
Seitenansicht eines Einfamilienhauses mit Klinkerstein und Terrasse von Viebrockhaus - Das Haus heißt Maxime 200
Loading...

Das kann sich sehen lassen: Das Maxime 120 kommt als zeitgemäße Interpretation des traditionellen Landhauses daher. Moderne Akzente werden durch die asymmetrische Fensteraufteilung und das Ziermauerwerk gesetzt.

  • 130,00 m²
  • 7,60 x 12,00 m
  • Satteldach, 48°
  • Effizienzhaus-Stufe 40
  • Photovoltaik
  • Hybrid-Smart-Air 3.0
  • Smart-Home-Plus-Ausstattung
Einfamilienhaus weiß verputzt mit grauen Elementen und zwei Terrassen. Das Haus heißt Maxime 120 von Viebrockhaus
Loading...

Das V1 ist ein klassisches Haus in zeitgemäßer Optik. Der Grundriss ist durchdacht und bietet neben Stauraum für Koffer sogar eine Ankleide. Dank des 142-Zentimeter-Drempels hält das Dachgeschoss viele Möblierungsmöglichkeiten bereit.

  • 138,47 m²
  • 8,10 x 11,74 m
  • Satteldach, 40°
  • Effizienzhaus-Stufe 40
  • Photovoltaik
  • Kompakt-Smart-Air 2.0
  • Smart-Home-Ausstattung
Seitenansicht eines Einfamilienhauses mit grauen Klinkersteinen. Das Einfamilienhaus ist das V1 von Viebrockhaus
Loading...

Das Haus ist dank des Giebeleingangs eine hervorragende Lösung für schmale Grundstücke. Die Räume auf der Gartenseite wirken luftig und hell: Dafür sorgen die großen Fenster.

  • 141,39 m²
  • 8,60 x 11,60 m
  • Satteldach, 40°
  • Effizienzhaus-Stufe 40
  • Photovoltaik
  • Hybrid-Smart-Air 3.0
  • Smart-Home-Plus-Ausstattung
Frontansicht eines Einfamilienhauses mit Klinkersteinen und einer kleinen Photovoltaikanlage. Es handelt sich um das Maxime 320 von Viebrockhaus
Loading...

Dieses Aktionshaus besticht durch modernen Charme und eine reduzierte, harmonische Architektur. Das klassische Satteldach in Kombination mit dem Power Roof verleiht dem Gebäude ein zeitlos-elegantes Erscheinungsbild.

  • 143,12 m²
  • 11,60 x 8,60 m
  • Satteldach, 40°
  • Effizienzhaus-Stufe 40
  • Kompakt-Smart-Air 2.0
  • Smart-Home-Ausstattung
  • Photovoltaik
Seitenansicht eines Einfamilienhauses mit Klinker und einer großen Power Roof auf dem Dach. Es handelt sich um das V3 Limited von Viebrockhaus
Loading...

Unser Bestseller! Dank der komfortablen Drempelhöhe und der bodentiefen Fenster wirken alle Räume im Dachgeschoss weit und groß. Auch ein drittes Kinderzimmer ist hier möglich.

  • 144,95 m²
  • 8,60 x 11,60 m
  • Satteldach, 45°
  • Effizienzhaus-Stufe 40
  • Photovoltaik
  • Hybrid-Smart-Air 3.0
  • Smart-Home-Plus-Ausstattung
Rückansicht des Maxime 300 - ein Einfamilienhaus weiß verputzt mit einer umlaufenden Terrasse von Viebrockhaus
Loading...

Traditionelle Stilelemente verbinden sich beim V3 mit klaren Linien und zukunftsweisender Technik zu einem besonders attraktiven Erscheinungsbild. Zum Garten hin öffnet sich das Haus trauf- und giebelseitig zur Natur.

  • 145 m²
  • 8,60 x 11,60 m
  • Satteldach, 35°
  • Effizienzhaus-Stufe 40
  • Kompakt-Smart-Air 2.0
  • Smart-Home-Ausstattung
  • Photovoltaik
Seitenansicht eines Einfamilienhauses mit Klinker und einer großen Photovoltaikanlage auf dem Dach. Es handelt sich um das V3 von Viebrockhaus
Loading...

Der erste Eindruck zählt. Und der ist beim Edition 1200 besonders faszinierend. Sofort fällt die besondere Flügelbauweise auf: Zwei moderne Kuben, einer eingeschossig, der andere zweigeschossig,

  • 147,17 m²
  • 12,60 x 13,25 m
  • Flachdach
  • Effizienzhaus-Stufe 40
  • Photovoltaik
  • Hybrid-Smart-Air 3.0
  • Smart-Home-Ausstattung: KNX-Basispaket
Modernes Flachdach-Einfamilienhaus mit großen Fensterfronten in der Dämmerung. Es handelt sich hierbei um das Edition 1200 von Viebrockhaus
Loading...

Das flexible Hauskonzept ermöglicht zahlreiche Anpassungen wie etwa eine Variante mit drei Kinderzimmern. Wie wäre es mit einem Traufgiebel oder einer Eingangsüberdachung? Der Traufgiebel wird durch die Wechselfassade zusätzlich akzentuiert.

  • 147,45 m²
  • 8,60 x 11,60 m
  • Satteldach, 35°
  • Effizienzhaus-Stufe 40
  • Photovoltaik
  • Hybrid-Smart-Air 3.0
  • Smart-Home-Plus-Ausstattung
Rückansicht des Einfamilienhauses Maxime 330 welches ein Klinkerhaus ist mit großen, bodentiefen Fenstern
Loading...

Das V2 ist zeitlos und stilvoll in der Optik und lässt auch beim Zuschnitt der Räume keine Wünsche offen. Die Zimmer sind dank bodentiefer Fenster hell und freundlich, der Grundriss ist durchdacht.

  • 151 m²
  • 8,10 x 12,84 m
  • Satteldach, 40°
  • Effizienzhaus-Stufe 40
  • Photovoltaik
  • Kompakt-Smart-Air 2.0
  • Smart-Home-Ausstattung
Seitenansicht des Einfamilienhauses V2 von Viebrockhaus. Es handelt sich um ein Klinkerhaus mit einer überdachten Terrasse
Loading...

Dank des Giebeleingangs passt das Maxime 420 hervorragend auf schmale Grundstücke. Aufsehenerregend ist die besondere Fensteroptik: Schmale Fenster und Oberlichtelemente geben dem Haus das gewisse Etwas. Ein Arbeitszimmer ist bereits inklusive.

  • 153,14 m²
  • 9,10 x 11,60 m
  • Satteldach, 35°
  • Effizienzhaus-Stufe 40
  • Photovoltaik
  • Hybrid-Smart-Air 3.0
  • Smart-Home-Plus-Ausstattung
Ansicht auf ein Einfamilienhaus weiß und grau verputzt mit Terrasse aus dem Garten. Hierbei handelt es sich um das Maxime 420 von Viebrockhaus
Loading...

Die klassische äußere Gestaltung und die großzügigen Raumzuschnitte sind die besonderen Eigenschaften dieses Entwurfs. Das vorgezogene Entree bietet viel Platz.

  • 153,61 m²
  • 9,10 x 11,60 m
  • Satteldach, 45°
  • Effizienzhaus-Stufe 40
  • Photovoltaik
  • Hybrid-Smart-Air 3.0
  • Smart-Home-Plus-Ausstattung
Rückansicht eines Klinker-Einfamilienhauses mit grauen Fenstern und einer Terrasse im Grünen
Loading...

Dieses Haus ist die beste Wahl für Grundstücke, bei denen die Straßenfront im Süden liegt: Mit einer kurzen Zuwegung kann das Grundstück optimal genutzt werden. Die Räume sind entsprechend ihrer Nutzung den Himmelsrichtungen zugeordnet.

  • 153,68 m²
  • 9,10 x 11,60 m
  • Satteldach, 35°
  • Effizienzhaus-Stufe 40
  • Photovoltaik
  • Hybrid-Smart-Air 3.0
  • Smart-Home-Plus-Ausstattung
Rückansicht eines Einfamilienhauses mit einer großen Terrasse. Das ist das Maxime 440 von Viebrockhaus
Loading...

Das Maxime 430 bietet so viele Möglichkeiten auf mehr als 150 Quadratmetern. Die Empore kann beispielsweise als Homeoffice genutzt werden und der Gästeraum ist so groß, dass er auch als drittes Kinderzimmer dienen kann.

  • 155,03 m²
  • 9,10 x 11,60 m
  • Satteldach, 40°
  • Effizienzhaus-Stufe 40
  • Photovoltaik
  • Hybrid-Smart-Air 3.0
  • Smart-Home-Plus-Ausstattung
Sicht auf ein weißes Einfamilienhaus in der Dämmerung mit beleuchteten Fenstern und zwei Terrassen mit Lounge und Gartenmöbeln. Es handelt sich bei dem Einfamilienhaus um das Maxime 430 von Viebrockhaus
Loading...

Eine Besonderheit des Maxime 450 ist das sehr tiefe Erkermodul. Der Erker lässt den Essbereich wie einen Wintergarten wirken. Außerdem verfügt das Haus über viele Rückzugsorte. In der Putzvariante, ohne Fensterbänder ausgeführt,

  • 158,25 m²
  • 9,10 x 11,60 m
  • Satteldach, 35°
  • Effizienzhaus-Stufe 40
  • Photovoltaik
  • Hybrid-Smart-Air 3.0
  • Smart-Home-Plus-Ausstattung
Ansicht eines Einfamilienhaus mit grauem Putz und einer Photovoltaikanlage auf dem Dach sowie einer großen Terrasse. Es handelt sich um das Maxime 450 von Viebrockhaus
Loading...

Dürfen wir vorstellen: unser zukünftiger Bestseller und Stilwandler mit Charakter. Eleganz und Wohlfühlatmosphäre: Dies alles vereint das Maxime 380 dank seiner charaktervollen und wandlungsfähigen Architektur.

  • 159,76 m²
  • 8,60 x 12,65 m
  • Satteldach, 40°
  • Effizienzhaus-Stufe 40
  • Photovoltaik
  • Hybrid-Smart-Air 3.0
  • Smart-Home-Plus-Ausstattung
Ansicht eines Einfamilienhauses mit zwei Etagen in der Dämmerung. Das Haus hat einen Garten mit Pool und eine große, umlaufende Terrasse. Es handelt sich um das Maxime 380 von Viebrockhaus
Loading...

Ein großes Haus mit einem pfiffigen Grundriss: Das Arbeitszimmer im Erdgeschoss ist genauso praktisch wie der Schrankraum im Dachgeschoss. Die Planung überzeugt mit vielen praktischen Details und einer sehr geräumigen Ankleide.

  • 160,55 m²
  • 9,60 x 11,60 m
  • Satteldach, 40°
  • Effizienzhaus-Stufe 40
  • Photovoltaik
  • Hybrid-Smart-Air 3.0
  • Smart-Home-Plus-Ausstattung
Ansicht eines Einfamilienhauses in Klinkeroptik mit bodentiefen Fenstern und zwei Terrassen. Dabei handelt es sich um das Maxime 620 von Viebrockhaus
Loading...

Das Edition 600 sieht immer klasse aus: mit oder ohne Dachüberstand, mit optionalem Freigebinde oder Ziermauerwerk. Besondere Hingucker sind die farbigen Putzflächen oder Fassadenelemente und der zurückliegende Eingang. Sie haben die Wahl!

  • 162,29 m²
  • 9,60 x 12,05 m
  • Satteldach, 29°
  • Effizienzhaus-Stufe 40
  • Photovoltaik
  • Hybrid-Smart-Air 3.0
  • Smart-Home-Ausstattung: KNX-Basispaket
Rückansicht eines Einfamilienhauses mit zwei vollen Stockwerken und vielen bodentiefen Fenstern mit weißer, verputzter Fassade. Im Garten ist ein Pool und eine große Terrasse über Eck. Es handelt sich um das Edition 600 von Viebrockhaus
Loading...

Dieses Landhaus mit Satteldach besticht durch klassische Details, die es zu einem besonders idyllischen Zuhause machen. Inspiriert von der norddeutschen Architektur, bietet das Edition 730 ausreichend Platz auf rund 165 Quadratmetern.

  • 164,68 m²
  • 10,10 x 11,60 m
  • Satteldach, 45°
  • Effizienzhaus-Stufe 40
  • Photovoltaik
  • Hybrid-Smart-Air 3.0
  • Smart-Home-Ausstattung: KNX-Basispaket
Edition 730
Loading...

Pfiffige Ideen wie der Abstellraum auf der Empore helfen, den Alltag zu organisieren. Das Arbeitszimmer im Erdgeschoss kann vielfältig genutzt werden: eben ein gut durchdachter Grundriss.

  • 165,09 m²
  • 9,60 x 11,60 m
  • Satteldach, 35°
  • Effizienzhaus-Stufe 40
  • Photovoltaik
  • Hybrid-Smart-Air 3.0
  • Smart-Home-Plus-Ausstattung
Maxime 610. Ein Einfamilienhaus mit zwei vollen Etagen mit Klinkeroptik
Loading...

Unser Multitalent haben wir in mehreren Varianten für Sie vorgeplant, zum Beispiel als Einfamilienhaus mit zwei Kinderzimmern.

  • 169,50 m²
  • 9,10 x 12,60 m
  • Satteldach, 42°
  • Effizienzhaus-Stufe 40
  • Photovoltaik
  • Hybrid-Smart-Air 3.0
  • Smart-Home-Ausstattung: KNX-Basispaket
Einfamilienhaus mit Rückansicht im Schnee
Loading...

Schon von außen ein Hingucker: der Flachdach-Zwerchgiebel. Die Backup-Küche hat einen Zugang zum Garten. Und auf der Empore ist viel Platz für einen Schreibtisch oder eine Couch zum Relaxen.

  • 173,65 m²
  • 9,10 x 12,60 m
  • Satteldach, 35°
  • Effizienzhaus-Stufe 40
  • Photovoltaik
  • Hybrid-Smart-Air 3.0
  • Smart-Home-Ausstattung: KNX-Basispaket
Edition 430
Loading...

Das Maxime 700 wurde für maximale Flexibilität entworfen. Mit seiner großzügigen Wohnfläche und dem durchdachten Grundriss erfüllt es höchste Ansprüche. Die Architektur ist klar und harmonisch. Eine zentrale Erschließungsachse,

  • 173,97 m²
  • 10,10 x 11,60 m
  • Satteldach, 35°
  • Effizienzhaus-Stufe 40
  • Photovoltaik
  • Hybrid-Smart-Air 3.0
  • Smart-Home-Plus-Ausstattung
Giebel- und Seitenansicht eines Einfamilienhauses mit Klinkerstein von Viebrockhaus - Das Haus heißt Maxime 700
Loading...

 

Das Edition 630 verbindet moderne Architektur mit traditioneller Wohnkultur. Die Dachgestaltung verleiht dem Haus eine stilvolle Ästhetik, während die harmonische Fensteranordnung für Leichtigkeit sorgt.

  • 177,65 m²
  • 9,60 x 13,15 m
  • Satteldach, 45°
  • Effizienzhaus-Stufe 40
  • Photovoltaik
  • Hybrid-Smart-Air 3.0
  • Smart-Home-Ausstattung: KNX-Basispaket
Edition 630
Loading...
Der Viebrockhaus-Katalog

Der Viebrockhaus-Katalog

Bestellen Sie unseren kostenlosen Katalog, in welchem Sie auf über 300 Seiten alles Wissenswerte rund um unsere Häuser und Leistungen finden!