Zwei Premieren. Zwei Highlights: V3 Limited & Edition 900 II

Maxime 610. Ein Einfamilienhaus mit zwei vollen Etagen mit Klinkeroptik
Einfamilienhaus

Maxime 610

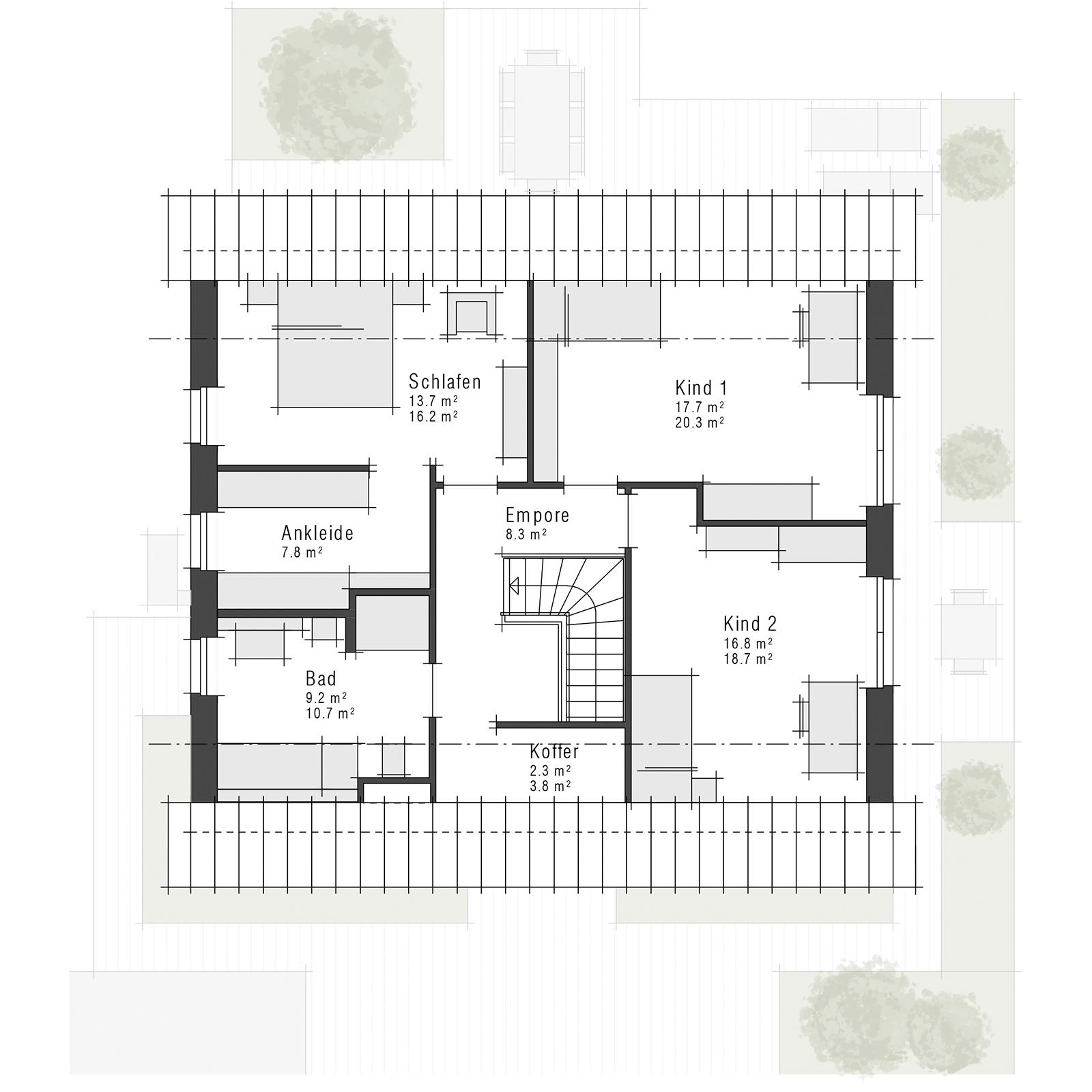
Pfiffige Ideen wie der Abstellraum auf der Empore helfen, den Alltag zu organisieren. Das Arbeitszimmer im Erdgeschoss kann vielfältig genutzt werden: eben ein gut durchdachter Grundriss. Auch dieses Haus präsentieren wir Ihnen als "Stilwandler", denn Sie können aus einer Vielzahl architektonischer Highlights den Stil wählen, der am besten zu Ihnen passt

Besichtigen Sie das Maxime 610 als Musterhaus im Musterhauspark Bad Fallingbostel.

Hinweis: Bilder zeigen zum Teil auf- oder minderpreispflichtige Ausstattungsmerkmale.

Merkmale

  • 165,09 m²
  • 9,60 x 11,60 m
  • 2 Badezimmer
  • 3 Schlafzimmer
  • Satteldach
  • 35°
  • 155 cm
  • Effizienzhaus-Stufe 40
  • Photovoltaik
  • Hybrid-Smart-Air 3.0
  • Smart-Home-Plus-Ausstattung
Highlights

Großartig im Detail

Wechselfassade beim Maxime 610
360° Touren und Varianten

Ihr Lebensraum - Ihr Zuhause

360° Tour Musterhaus Bad Fallingbostel

Loading...
Konfigurieren Sie hier Ihr Viebrockhaus
Grundriss

Von Grund auf durchdacht

Erdgeschoss »Zeitlos«

Willkommen: große Diele mit einladender zweiflügeliger, verglaster Wohnzimmertür.

Das Arbeitszimmer im Erdgeschoss ist auch als gemütlicher Rückzugsraum oder Gästezimmer nutzbar – mit kurzem Weg zum Duschbad.

Grundriss Erdgeschoss eines Einfamilienhauses Maxime 610 von Viebrockhaus im Stil zeitlos

Raum

Wohnfläche

Wohnen/Essen

40,50 m²

Kochen

11,23 m²

Arbeiten

10,17 m²

Diele

12,95 m²

Dusche/WC

4,34 m²

HTR

10,12 m²

Ein Haustyp - drei Stile

Stilwandler-Konzept

Maxime 610 Stilwandler
Maxime 610 Stilwandler
Maxime 610 Stilwandler

Stil »Zeitlos«

Stilelemente u. a.:

  • Schlichter Baukörper
  • Klare Formensprache
  • Harmonisch gegliederte Fassaden
  • Alltagstauglicher, durchdachter Grundriss
Stil »Zeitlos«

Stil »Modern«

Stilelemente u. a.:

  • Stadthausoptik
  • Flachdach-Traufgiebel
  • Fassadenplatten
  • Schwarze Regenrinnen und Fallrohre
  • Kontrastreiche Fassade
Stil »Modern«

Stil »Klassisch«

Stilelemente u. a.:

  • Satteldach-Traufgiebel
  • Giebelornamente
  • Sprossenfenster und französische Balkone
  • Black Line
  • Sitzfensterbank
Stil »Klassisch«
Familie testet Online-Finanzierungsrechner am Laptop

Online-Baufinanzierungsrechner – Kalkulieren Sie Ihre Monatsrate

Haben Sie sich für das Maxime 610 entschieden oder möchten Sie gerne in Erfahrung bringen, wie hoch die monatliche Finanzierungsrate bei diesem Einfamilienhaus ausfällt? Dann nutzen Sie unseren digitalen Finanzierungsrechner. Dieser hilft Ihnen dabei, schnell einen realistischen Überblick über die monatlichen Kosten zu erhalten und dient als erste Orientierung für die Finanzierung Ihres Viebrockhauses.

 

Ähnliche Häuser

Entdecken Sie weitere Häuser dieser Kategorie

Wer ein eher kleines Grundstück besitzt und Platz sparen will, wird den Eingang auf der Giebelseite lieben– er ist auch gestalterisch ein Highlight. Der Grundriss bietet einige Raffinessen,

  • 114,76 m²
  • 8,10 x 10,00 m
  • Satteldach, 40°
  • Effizienzhaus-Stufe 40
  • Photovoltaik
  • Smart-Home-Ausstattung
  • Kompakt-Smart-Air 2.0
Frontansicht eines Einfamilienhauses mit Carport und Eingangstür. Es handelt sich um das V6 von Viebrockhaus
Loading...

Unser zukunftssicheres Familienhaus bietet alles, was eine vierköpfige Familie braucht - vor allem dank der durchdachten Grundrisse. Das klassische Satteldach mit den schönen Gesimsen an der Traufseite strahlt Gemütlichkeit aus.

  • 123,4 m²
  • 8,10 x 10,65 m
  • Satteldach, 40°
  • Effizienzhaus-Stufe 40
  • Photovoltaik
  • Kompakt-Smart-Air 2.0
  • Smart-Home-Ausstattung
Einfamilienhaus mit Ansicht aus dem Garten. Das Einfamilienhaus hat bodentiefe Fenster und nennt sich V5 von Viebrockhaus
Loading...

Das Maxime 200 ermöglicht ein offenes Wohnkonzept auf rund 127 Quadratmetern. Pfiffige Lösungen wie eine separate Garderobe und eine Ankleide sorgen für ein aufgeräumtes, luftiges Wohngefühl.

  • 126,61 m²
  • 8,10 x 11,00 m
  • Satteldach, 40°
  • Effizienzhaus-Stufe 40
  • Photovoltaik
  • Hybrid-Smart-Air 3.0
  • Smart-Home-Plus-Ausstattung
Seitenansicht eines Einfamilienhauses mit Klinkerstein und Terrasse von Viebrockhaus - Das Haus heißt Maxime 200
Loading...

Das kann sich sehen lassen: Das Maxime 120 kommt als zeitgemäße Interpretation des traditionellen Landhauses daher. Moderne Akzente werden durch die asymmetrische Fensteraufteilung und das Ziermauerwerk gesetzt.

  • 130,00 m²
  • 7,60 x 12,00 m
  • Satteldach, 48°
  • Effizienzhaus-Stufe 40
  • Photovoltaik
  • Hybrid-Smart-Air 3.0
  • Smart-Home-Plus-Ausstattung
Einfamilienhaus weiß verputzt mit grauen Elementen und zwei Terrassen. Das Haus heißt Maxime 120 von Viebrockhaus
Loading...

Das V1 ist ein klassisches Haus in zeitgemäßer Optik. Der Grundriss ist durchdacht und bietet neben Stauraum für Koffer sogar eine Ankleide. Dank des 142-Zentimeter-Drempels hält das Dachgeschoss viele Möblierungsmöglichkeiten bereit.

  • 138,47 m²
  • 8,10 x 11,74 m
  • Satteldach, 40°
  • Effizienzhaus-Stufe 40
  • Photovoltaik
  • Kompakt-Smart-Air 2.0
  • Smart-Home-Ausstattung
Seitenansicht eines Einfamilienhauses mit grauen Klinkersteinen. Das Einfamilienhaus ist das V1 von Viebrockhaus
Loading...

Das Haus ist dank des Giebeleingangs eine hervorragende Lösung für schmale Grundstücke. Die Räume auf der Gartenseite wirken luftig und hell: Dafür sorgen die großen Fenster.

  • 141,39 m²
  • 8,60 x 11,60 m
  • Satteldach, 40°
  • Effizienzhaus-Stufe 40
  • Photovoltaik
  • Hybrid-Smart-Air 3.0
  • Smart-Home-Plus-Ausstattung
Frontansicht eines Einfamilienhauses mit Klinkersteinen und einer kleinen Photovoltaikanlage. Es handelt sich um das Maxime 320 von Viebrockhaus
Loading...

Dieses Aktionshaus besticht durch modernen Charme und eine reduzierte, harmonische Architektur. Das klassische Satteldach in Kombination mit dem Power Roof verleiht dem Gebäude ein zeitlos-elegantes Erscheinungsbild.

  • 143,12 m²
  • 11,60 x 8,60 m
  • Satteldach, 40°
  • Effizienzhaus-Stufe 40
  • Kompakt-Smart-Air 2.0
  • Smart-Home-Ausstattung
  • Photovoltaik
Seitenansicht eines Einfamilienhauses mit Klinker und einer großen Power Roof auf dem Dach. Es handelt sich um das V3 Limited von Viebrockhaus
Loading...

Unser Bestseller! Dank der komfortablen Drempelhöhe und der bodentiefen Fenster wirken alle Räume im Dachgeschoss weit und groß. Auch ein drittes Kinderzimmer ist hier möglich.

  • 144,95 m²
  • 8,60 x 11,60 m
  • Satteldach, 45°
  • Effizienzhaus-Stufe 40
  • Photovoltaik
  • Hybrid-Smart-Air 3.0
  • Smart-Home-Plus-Ausstattung
Rückansicht des Maxime 300 - ein Einfamilienhaus weiß verputzt mit einer umlaufenden Terrasse von Viebrockhaus
Loading...

Traditionelle Stilelemente verbinden sich beim V3 mit klaren Linien und zukunftsweisender Technik zu einem besonders attraktiven Erscheinungsbild. Zum Garten hin öffnet sich das Haus trauf- und giebelseitig zur Natur.

  • 145,93 m²
  • 8,60 x 11,60 m
  • Satteldach, 35°
  • Effizienzhaus-Stufe 40
  • Kompakt-Smart-Air 2.0
  • Smart-Home-Ausstattung
  • Photovoltaik
Seitenansicht eines Einfamilienhauses mit Klinker und einer großen Photovoltaikanlage auf dem Dach. Es handelt sich um das V3 von Viebrockhaus
Loading...

Der erste Eindruck zählt. Und der ist beim Edition 1200 besonders faszinierend. Sofort fällt die besondere Flügelbauweise auf: Zwei moderne Kuben, einer eingeschossig, der andere zweigeschossig,

  • 147,17 m²
  • 12,60 x 13,25 m
  • Flachdach
  • Effizienzhaus-Stufe 40
  • Photovoltaik
  • Hybrid-Smart-Air 3.0
  • Smart-Home-Ausstattung: KNX-Basispaket
Modernes Flachdach-Einfamilienhaus mit großen Fensterfronten in der Dämmerung. Es handelt sich hierbei um das Edition 1200 von Viebrockhaus
Loading...

Das flexible Hauskonzept ermöglicht zahlreiche Anpassungen wie etwa eine Variante mit drei Kinderzimmern. Wie wäre es mit einem Traufgiebel oder einer Eingangsüberdachung? Der Traufgiebel wird durch die Wechselfassade zusätzlich akzentuiert.

  • 147,45 m²
  • 8,60 x 11,60 m
  • Satteldach, 35°
  • Effizienzhaus-Stufe 40
  • Photovoltaik
  • Hybrid-Smart-Air 3.0
  • Smart-Home-Plus-Ausstattung
Rückansicht des Einfamilienhauses Maxime 330 welches ein Klinkerhaus ist mit großen, bodentiefen Fenstern
Loading...

Das V2 ist zeitlos und stilvoll in der Optik und lässt auch beim Zuschnitt der Räume keine Wünsche offen. Die Zimmer sind dank bodentiefer Fenster hell und freundlich, der Grundriss ist durchdacht.

  • 151,92 m²
  • 8,10 x 12,84 m
  • Satteldach, 40°
  • Effizienzhaus-Stufe 40
  • Photovoltaik
  • Kompakt-Smart-Air 2.0
  • Smart-Home-Ausstattung
Seitenansicht des Einfamilienhauses V2 von Viebrockhaus. Es handelt sich um ein Klinkerhaus mit einer überdachten Terrasse
Loading...

Dank des Giebeleingangs passt das Maxime 420 hervorragend auf schmale Grundstücke. Aufsehenerregend ist die besondere Fensteroptik: Schmale Fenster und Oberlichtelemente geben dem Haus das gewisse Etwas. Ein Arbeitszimmer ist bereits inklusive.

  • 153,14 m²
  • 9,10 x 11,60 m
  • Satteldach, 35°
  • Effizienzhaus-Stufe 40
  • Photovoltaik
  • Hybrid-Smart-Air 3.0
  • Smart-Home-Plus-Ausstattung
Ansicht auf ein Einfamilienhaus weiß und grau verputzt mit Terrasse aus dem Garten. Hierbei handelt es sich um das Maxime 420 von Viebrockhaus
Loading...

Die klassische äußere Gestaltung und die großzügigen Raumzuschnitte sind die besonderen Eigenschaften dieses Entwurfs. Das vorgezogene Entree bietet viel Platz.

  • 153,61 m²
  • 9,10 x 11,60 m
  • Satteldach, 45°
  • Effizienzhaus-Stufe 40
  • Photovoltaik
  • Hybrid-Smart-Air 3.0
  • Smart-Home-Plus-Ausstattung
Rückansicht eines Klinker-Einfamilienhauses mit grauen Fenstern und einer Terrasse im Grünen
Loading...

Dieses Haus ist die beste Wahl für Grundstücke, bei denen die Straßenfront im Süden liegt: Mit einer kurzen Zuwegung kann das Grundstück optimal genutzt werden. Die Räume sind entsprechend ihrer Nutzung den Himmelsrichtungen zugeordnet.

  • 153,68 m²
  • 9,10 x 11,60 m
  • Satteldach, 35°
  • Effizienzhaus-Stufe 40
  • Photovoltaik
  • Hybrid-Smart-Air 3.0
  • Smart-Home-Plus-Ausstattung
Rückansicht eines Einfamilienhauses mit einer großen Terrasse. Das ist das Maxime 440 von Viebrockhaus
Loading...

Das Maxime 430 bietet so viele Möglichkeiten auf mehr als 150 Quadratmetern. Die Empore kann beispielsweise als Homeoffice genutzt werden und der Gästeraum ist so groß, dass er auch als drittes Kinderzimmer dienen kann.

  • 155,03 m²
  • 9,10 x 11,60 m
  • Satteldach, 40°
  • Effizienzhaus-Stufe 40
  • Photovoltaik
  • Hybrid-Smart-Air 3.0
  • Smart-Home-Plus-Ausstattung
Sicht auf ein weißes Einfamilienhaus in der Dämmerung mit beleuchteten Fenstern und zwei Terrassen mit Lounge und Gartenmöbeln. Es handelt sich bei dem Einfamilienhaus um das Maxime 430 von Viebrockhaus
Loading...

Eine Besonderheit des Maxime 450 ist das sehr tiefe Erkermodul. Der Erker lässt den Essbereich wie einen Wintergarten wirken. Außerdem verfügt das Haus über viele Rückzugsorte. In der Putzvariante, ohne Fensterbänder ausgeführt,

  • 158,25 m²
  • 9,10 x 11,60 m
  • Satteldach, 35°
  • Effizienzhaus-Stufe 40
  • Photovoltaik
  • Hybrid-Smart-Air 3.0
  • Smart-Home-Plus-Ausstattung
Ansicht eines Einfamilienhaus mit grauem Putz und einer Photovoltaikanlage auf dem Dach sowie einer großen Terrasse. Es handelt sich um das Maxime 450 von Viebrockhaus
Loading...

Dürfen wir vorstellen: unser zukünftiger Bestseller und Stilwandler mit Charakter. Eleganz und Wohlfühlatmosphäre: Dies alles vereint das Maxime 380 dank seiner charaktervollen und wandlungsfähigen Architektur.

  • 159,76 m²
  • 8,60 x 12,65 m
  • Satteldach, 40°
  • Effizienzhaus-Stufe 40
  • Photovoltaik
  • Hybrid-Smart-Air 3.0
  • Smart-Home-Plus-Ausstattung
Ansicht eines Einfamilienhauses mit zwei Etagen in der Dämmerung. Das Haus hat einen Garten mit Pool und eine große, umlaufende Terrasse. Es handelt sich um das Maxime 380 von Viebrockhaus
Loading...

Ein großes Haus mit einem pfiffigen Grundriss: Das Arbeitszimmer im Erdgeschoss ist genauso praktisch wie der Schrankraum im Dachgeschoss. Die Planung überzeugt mit vielen praktischen Details und einer sehr geräumigen Ankleide.

  • 160,55 m²
  • 9,60 x 11,60 m
  • Satteldach, 40°
  • Effizienzhaus-Stufe 40
  • Photovoltaik
  • Hybrid-Smart-Air 3.0
  • Smart-Home-Plus-Ausstattung
Ansicht eines Einfamilienhauses in Klinkeroptik mit bodentiefen Fenstern und zwei Terrassen. Dabei handelt es sich um das Maxime 620 von Viebrockhaus
Loading...

Das Edition 600 sieht immer klasse aus: mit oder ohne Dachüberstand, mit optionalem Freigebinde oder Ziermauerwerk. Besondere Hingucker sind die farbigen Putzflächen oder Fassadenelemente und der zurückliegende Eingang. Sie haben die Wahl!

  • 162,29 m²
  • 9,60 x 12,05 m
  • Satteldach, 29°
  • Effizienzhaus-Stufe 40
  • Photovoltaik
  • Hybrid-Smart-Air 3.0
  • Smart-Home-Ausstattung: KNX-Basispaket
Rückansicht eines Einfamilienhauses mit zwei vollen Stockwerken und vielen bodentiefen Fenstern mit weißer, verputzter Fassade. Im Garten ist ein Pool und eine große Terrasse über Eck. Es handelt sich um das Edition 600 von Viebrockhaus
Loading...

Dieses Landhaus mit Satteldach besticht durch klassische Details, die es zu einem besonders idyllischen Zuhause machen. Inspiriert von der norddeutschen Architektur, bietet das Edition 730 ausreichend Platz auf rund 165 Quadratmetern.

  • 164,68 m²
  • 10,10 x 11,60 m
  • Satteldach, 45°
  • Effizienzhaus-Stufe 40
  • Photovoltaik
  • Hybrid-Smart-Air 3.0
  • Smart-Home-Ausstattung: KNX-Basispaket
Edition 730
Loading...
Der Viebrockhaus-Katalog

Der Viebrockhaus-Katalog

Bestellen Sie unseren kostenlosen Katalog, in welchem Sie auf über 300 Seiten alles Wissenswerte rund um unsere Häuser und Leistungen finden!