Zwei Premieren. Zwei Highlights: V3 Limited & Edition 900 II

Gratis-Katalog anfordern
Maxime 300 II
Villa und Stadthaus

Maxime 300 II

Große Räume prägen den Basisentwurf dieses Hauses. Unser großzügiger und klassischer Grundriss kann aber auch variabel an unterschiedliche Wohnbedürfnisse angepasst werden. Die Außenansichten zeigen eindrucksvoll, wie vielfältig das Maxime 300 II gestaltet werden kann: Von der klassischen Stadtvilla mit Walmdach bis zum modernen Kubus mit Flachdach im Bauhausstil reichen die Möglichkeiten.

Hinweis: Bilder zeigen zum Teil auf- oder minderpreispflichtige Ausstattungsmerkmale.

Merkmale

  • 155,00 m²
  • 8,60 x 11,60 m
  • 1 Badezimmer
  • 3 Schlafzimmer
  • Walmdach
  • 22°
  • Effizienzhaus-Stufe 40
  • Photovoltaik
  • Hybrid-Smart-Air 3.0
  • Smart-Home-Plus-Ausstattung
Highlights

Großartig im Detail

Maxime 300 II mit Flachdach-Erker
Maxime 300 II - Eingangsvordach (mit Seitenwand)
360° Touren und Varianten

Ihr Lebensraum - Ihr Zuhause

Viebrockhaus – Maxime 300 II – Flachdach-Erker
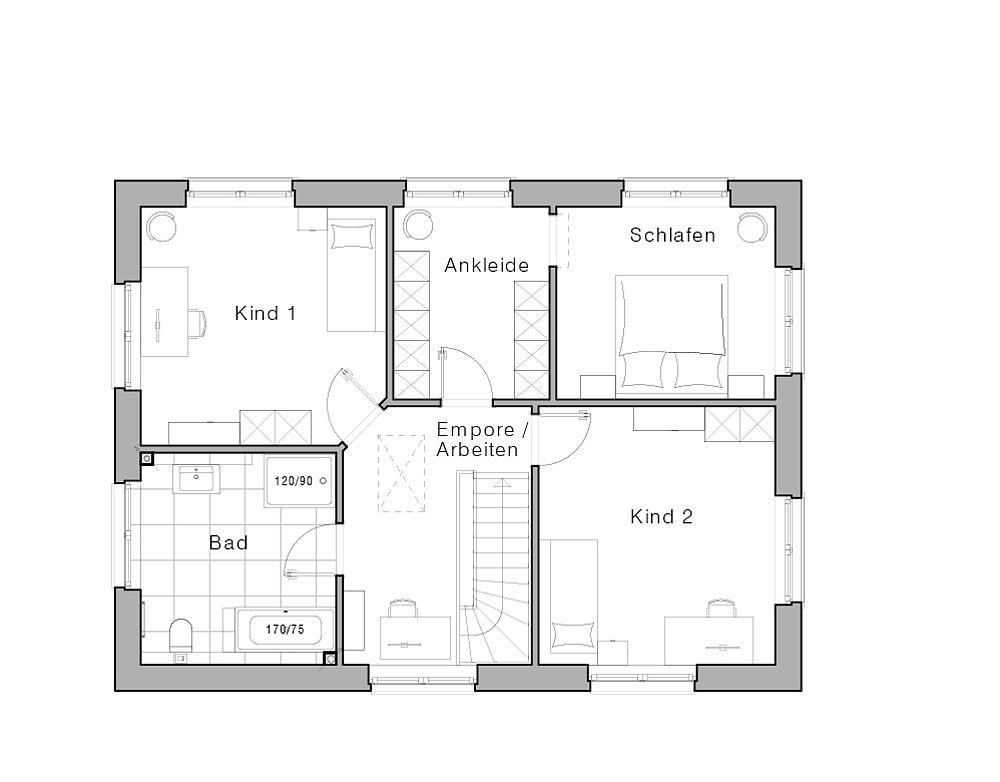
Grundriss

Von Grund auf durchdacht

Erdgeschoss

Im Zentrum der Planung liegt das große Wohn- und Esszimmer mit angeschlossenem Kochbereich: Dieser verbundene Raum bildet den Lebensmittelpunkt, der sich L-förmig auf knapp 56 Quadratmetern über alle Hausseiten erstreckt. Aufgrund der geschickten Planung gelangt viel Tageslicht in diesen Bereich. Die große Diele bietet jede Menge Platz für ein turbulentes Familienleben und für die Begrüßung von Gästen.

Grundriss Stadtvilla Maxime 300 II von Viebrockhaus - Erdgeschoss

Raum

Wohnfläche

Wohnen/Essen

44,08 m²

Kochen

12,07 m²

Diele

10,82 m²

WC

1,99 m²

HTR

10,44 m²

Ähnliche Häuser

Entdecken Sie weitere Häuser dieser Kategorie

Bei diesem Haus sorgt der kompakte und offen konzipierte Grundriss für ein wunderbar luftiges Wohngefühl. Dank der zahlreichen Fenster werden alle Räume mit viel Licht geflutet. Auf der Gartenseite öffnet sich das Haus mit vielen Fensterflächen,

  • 135,59 m²
  • 8,10 x 11,00 m
  • Walmdach, 22°
  • Effizienzhaus-Stufe 40
  • Photovoltaik
  • Hybrid-Smart-Air 3.0
  • Smart-Home-Plus-Ausstattung
Maxime 200 II
Loading...

Diese zweigeschossige Stadtvilla gibt es in den drei unterschiedlichen Stilen: »Zeitlos«, »Modern« und »Klassisch« und drei Grundrissvarianten. Sie ist designt für den großen Auftritt und eine strahlende Schönheit in Weiß.

  • 152,33 m²
  • 10,10 x 10,10 m
  • Zeltdach, 25°
  • Effizienzhaus-Stufe 40
  • Photovoltaik
  • Hybrid-Smart-Air 3.0
  • Smart-Home-Plus-Ausstattung
Maxime 720 II
Loading...

Außergewöhnlich: Kein Wort beschreibt das Edition 200 II treffender. Geringe Flächenversiegelung,

  • 97,84 m²
  • 8,10 x 9,15 m
  • Satteldach, 45°
  • Effizienzhaus-Stufe 40
  • Photovoltaik
  • Smart-Home-Ausstattung: KNX-Basispaket
  • Hybrid-Smart-Air 3.0
Edition 220 II von Viebrockhaus - eine Stadtvilla mit einer Lichterkette
Loading...
Der Viebrockhaus-Katalog

Der Viebrockhaus-Katalog

Bestellen Sie unseren kostenlosen Katalog, in welchem Sie auf über 300 Seiten alles Wissenswerte rund um unsere Häuser und Leistungen finden!