Maxime 430
Das Maxime 430 bietet so viele Möglichkeiten auf mehr als 150 Quadratmetern. Die Empore kann beispielsweise als Homeoffice genutzt werden und der Gästeraum ist so groß, dass er auch als drittes Kinderzimmer dienen kann. Die asymmetrisch angeordneten Fenster prägen das äußere Erscheinungsbild des Maxime 430. Im Wohnbereich gehen die bodentiefen Fenster um die Ecke und bringen von zwei Seiten Licht in den Raum. Den gleichen Effekt hat das Eckfenster in der Küche.
Hinweis: Bilder zeigen zum Teil auf- oder minderpreispflichtige Ausstattungsmerkmale.
Merkmale
- 155,03 m²
- 9,10 x 11,60 m
- 2 Badezimmer
- 3 Schlafzimmer
- Satteldach
- 40°
- 130 cm
- Effizienzhaus-Stufe 40
- Photovoltaik
- Hybrid-Smart-Air 3.0
- Smart-Home-Plus-Ausstattung
Großartig im Detail
Diele und Entrée
Ihr Lebensraum - Ihr Zuhause
360° Tour
Diele und Entrée
Diele und Entrée
Von Grund auf durchdacht
Erdgeschoss
Das Eckfenster in der Küche ist nicht nur architektonisch reizvoll, sondern ermöglicht während des Kochens auch einen wunderbaren Blick in den Garten.
Stilgebend ist die geradlinige Treppe ins Dachgeschoss. Beim Eintritt ins Haus geht die Blickachse von der Haustür über den Essbereich bis in den Garten und schafft ein großzügiges Raumgefühl.
Raum
Wohnfläche
Wohnen
21,53 m²
Kochen/Essen
25,77 m²
Arbeiten/Gast
12,01 m²
Diele
9,64 m²
Garderobe
3,70 m²
Dusche/WC
3,41 m²
HTR
10,20 m²
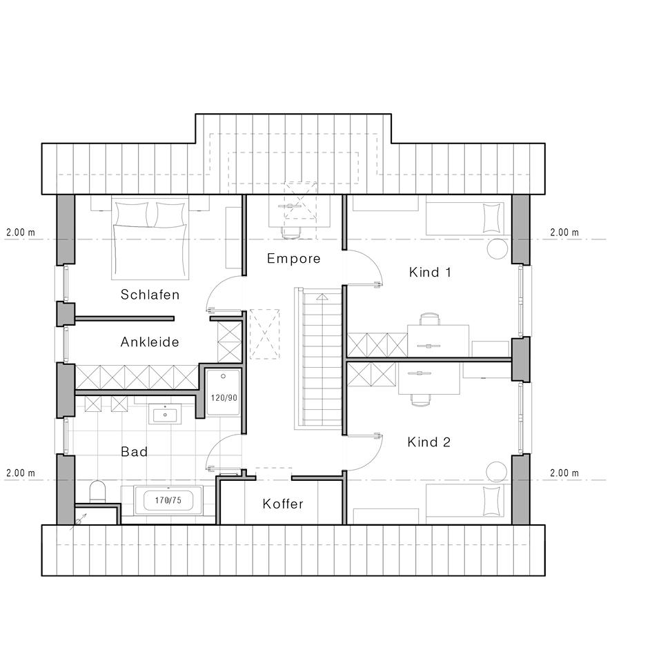
Dachgeschoss
Die beiden Kinderzimmer sind exakt gleich groß und ermöglichen vielfältige Möblierungen. Die Nutzfläche von fast 16 Quadratmetern bietet viel Bewegungs- und Spielfläche.
Raum
Wohnfläche
Nutzfläche
Schlafen
10,27 m²
12,53 m²
Ankleide
6,45 m²
6,45 m²
Kind 1
14,32 m²
16,55 m²
Kind 2
14,32 m²
16,55 m²
Bad
10,70 m²
12,30 m²
Koffer
1,65 m²
3,30 m²
Empore
11,06 m²
12,36 m²
Entdecken Sie weitere Häuser dieser Kategorie
Wer ein eher kleines Grundstück besitzt und Platz sparen will, wird den Eingang auf der Giebelseite lieben– er ist auch gestalterisch ein Highlight. Der Grundriss bietet einige Raffinessen,
- 114,76 m²
- 8,10 x 10,00 m
- Satteldach, 40°
- Effizienzhaus-Stufe 40
- Photovoltaik
- Smart-Home-Ausstattung
- Kompakt-Smart-Air 2.0
Unser zukunftssicheres Familienhaus bietet alles, was eine vierköpfige Familie braucht - vor allem dank der durchdachten Grundrisse. Das klassische Satteldach mit den schönen Gesimsen an der Traufseite strahlt Gemütlichkeit aus.
- 123,4 m²
- 8,10 x 10,65 m
- Satteldach, 40°
- Effizienzhaus-Stufe 40
- Photovoltaik
- Kompakt-Smart-Air 2.0
- Smart-Home-Ausstattung
Das Maxime 200 ermöglicht ein offenes Wohnkonzept auf rund 127 Quadratmetern. Pfiffige Lösungen wie eine separate Garderobe und eine Ankleide sorgen für ein aufgeräumtes, luftiges Wohngefühl.
- 126,61 m²
- 8,10 x 11,00 m
- Satteldach, 40°
- Effizienzhaus-Stufe 40
- Photovoltaik
- Hybrid-Smart-Air 3.0
- Smart-Home-Plus-Ausstattung
Das kann sich sehen lassen: Das Maxime 120 kommt als zeitgemäße Interpretation des traditionellen Landhauses daher. Moderne Akzente werden durch die asymmetrische Fensteraufteilung und das Ziermauerwerk gesetzt.
- 130,00 m²
- 7,60 x 12,00 m
- Satteldach, 48°
- Effizienzhaus-Stufe 40
- Photovoltaik
- Hybrid-Smart-Air 3.0
- Smart-Home-Plus-Ausstattung
Das V1 ist ein klassisches Haus in zeitgemäßer Optik. Der Grundriss ist durchdacht und bietet neben Stauraum für Koffer sogar eine Ankleide. Dank des 142-Zentimeter-Drempels hält das Dachgeschoss viele Möblierungsmöglichkeiten bereit.
- 138,47 m²
- 8,10 x 11,74 m
- Satteldach, 40°
- Effizienzhaus-Stufe 40
- Photovoltaik
- Kompakt-Smart-Air 2.0
- Smart-Home-Ausstattung
Das Haus ist dank des Giebeleingangs eine hervorragende Lösung für schmale Grundstücke. Die Räume auf der Gartenseite wirken luftig und hell: Dafür sorgen die großen Fenster.
- 141,39 m²
- 8,60 x 11,60 m
- Satteldach, 40°
- Effizienzhaus-Stufe 40
- Photovoltaik
- Hybrid-Smart-Air 3.0
- Smart-Home-Plus-Ausstattung
Dieses Aktionshaus besticht durch modernen Charme und eine reduzierte, harmonische Architektur. Das klassische Satteldach in Kombination mit dem Power Roof verleiht dem Gebäude ein zeitlos-elegantes Erscheinungsbild.
- 143,12 m²
- 11,60 x 8,60 m
- Satteldach, 40°
- Effizienzhaus-Stufe 40
- Kompakt-Smart-Air 2.0
- Smart-Home-Ausstattung
- Photovoltaik
Unser Bestseller! Dank der komfortablen Drempelhöhe und der bodentiefen Fenster wirken alle Räume im Dachgeschoss weit und groß. Auch ein drittes Kinderzimmer ist hier möglich.
- 144,95 m²
- 8,60 x 11,60 m
- Satteldach, 45°
- Effizienzhaus-Stufe 40
- Photovoltaik
- Hybrid-Smart-Air 3.0
- Smart-Home-Plus-Ausstattung
Traditionelle Stilelemente verbinden sich beim V3 mit klaren Linien und zukunftsweisender Technik zu einem besonders attraktiven Erscheinungsbild. Zum Garten hin öffnet sich das Haus trauf- und giebelseitig zur Natur.
- 145,93 m²
- 8,60 x 11,60 m
- Satteldach, 35°
- Effizienzhaus-Stufe 40
- Kompakt-Smart-Air 2.0
- Smart-Home-Ausstattung
- Photovoltaik
Der erste Eindruck zählt. Und der ist beim Edition 1200 besonders faszinierend. Sofort fällt die besondere Flügelbauweise auf: Zwei moderne Kuben, einer eingeschossig, der andere zweigeschossig,
- 147,17 m²
- 12,60 x 13,25 m
- Flachdach
- Effizienzhaus-Stufe 40
- Photovoltaik
- Hybrid-Smart-Air 3.0
- Smart-Home-Ausstattung: KNX-Basispaket
Das flexible Hauskonzept ermöglicht zahlreiche Anpassungen wie etwa eine Variante mit drei Kinderzimmern. Wie wäre es mit einem Traufgiebel oder einer Eingangsüberdachung? Der Traufgiebel wird durch die Wechselfassade zusätzlich akzentuiert.
- 147,45 m²
- 8,60 x 11,60 m
- Satteldach, 35°
- Effizienzhaus-Stufe 40
- Photovoltaik
- Hybrid-Smart-Air 3.0
- Smart-Home-Plus-Ausstattung
Das V2 ist zeitlos und stilvoll in der Optik und lässt auch beim Zuschnitt der Räume keine Wünsche offen. Die Zimmer sind dank bodentiefer Fenster hell und freundlich, der Grundriss ist durchdacht.
- 151,92 m²
- 8,10 x 12,84 m
- Satteldach, 40°
- Effizienzhaus-Stufe 40
- Photovoltaik
- Kompakt-Smart-Air 2.0
- Smart-Home-Ausstattung
Dank des Giebeleingangs passt das Maxime 420 hervorragend auf schmale Grundstücke. Aufsehenerregend ist die besondere Fensteroptik: Schmale Fenster und Oberlichtelemente geben dem Haus das gewisse Etwas. Ein Arbeitszimmer ist bereits inklusive.
- 153,14 m²
- 9,10 x 11,60 m
- Satteldach, 35°
- Effizienzhaus-Stufe 40
- Photovoltaik
- Hybrid-Smart-Air 3.0
- Smart-Home-Plus-Ausstattung
Die klassische äußere Gestaltung und die großzügigen Raumzuschnitte sind die besonderen Eigenschaften dieses Entwurfs. Das vorgezogene Entree bietet viel Platz.
- 153,61 m²
- 9,10 x 11,60 m
- Satteldach, 45°
- Effizienzhaus-Stufe 40
- Photovoltaik
- Hybrid-Smart-Air 3.0
- Smart-Home-Plus-Ausstattung
Dieses Haus ist die beste Wahl für Grundstücke, bei denen die Straßenfront im Süden liegt: Mit einer kurzen Zuwegung kann das Grundstück optimal genutzt werden. Die Räume sind entsprechend ihrer Nutzung den Himmelsrichtungen zugeordnet.
- 153,68 m²
- 9,10 x 11,60 m
- Satteldach, 35°
- Effizienzhaus-Stufe 40
- Photovoltaik
- Hybrid-Smart-Air 3.0
- Smart-Home-Plus-Ausstattung
Eine Besonderheit des Maxime 450 ist das sehr tiefe Erkermodul. Der Erker lässt den Essbereich wie einen Wintergarten wirken. Außerdem verfügt das Haus über viele Rückzugsorte. In der Putzvariante, ohne Fensterbänder ausgeführt,
- 158,25 m²
- 9,10 x 11,60 m
- Satteldach, 35°
- Effizienzhaus-Stufe 40
- Photovoltaik
- Hybrid-Smart-Air 3.0
- Smart-Home-Plus-Ausstattung
Dürfen wir vorstellen: unser zukünftiger Bestseller und Stilwandler mit Charakter. Eleganz und Wohlfühlatmosphäre: Dies alles vereint das Maxime 380 dank seiner charaktervollen und wandlungsfähigen Architektur.
- 159,76 m²
- 8,60 x 12,65 m
- Satteldach, 40°
- Effizienzhaus-Stufe 40
- Photovoltaik
- Hybrid-Smart-Air 3.0
- Smart-Home-Plus-Ausstattung
Ein großes Haus mit einem pfiffigen Grundriss: Das Arbeitszimmer im Erdgeschoss ist genauso praktisch wie der Schrankraum im Dachgeschoss. Die Planung überzeugt mit vielen praktischen Details und einer sehr geräumigen Ankleide.
- 160,55 m²
- 9,60 x 11,60 m
- Satteldach, 40°
- Effizienzhaus-Stufe 40
- Photovoltaik
- Hybrid-Smart-Air 3.0
- Smart-Home-Plus-Ausstattung
Das Edition 600 sieht immer klasse aus: mit oder ohne Dachüberstand, mit optionalem Freigebinde oder Ziermauerwerk. Besondere Hingucker sind die farbigen Putzflächen oder Fassadenelemente und der zurückliegende Eingang. Sie haben die Wahl!
- 162,29 m²
- 9,60 x 12,05 m
- Satteldach, 29°
- Effizienzhaus-Stufe 40
- Photovoltaik
- Hybrid-Smart-Air 3.0
- Smart-Home-Ausstattung: KNX-Basispaket
Dieses Landhaus mit Satteldach besticht durch klassische Details, die es zu einem besonders idyllischen Zuhause machen. Inspiriert von der norddeutschen Architektur, bietet das Edition 730 ausreichend Platz auf rund 165 Quadratmetern.
- 164,68 m²
- 10,10 x 11,60 m
- Satteldach, 45°
- Effizienzhaus-Stufe 40
- Photovoltaik
- Hybrid-Smart-Air 3.0
- Smart-Home-Ausstattung: KNX-Basispaket
Pfiffige Ideen wie der Abstellraum auf der Empore helfen, den Alltag zu organisieren. Das Arbeitszimmer im Erdgeschoss kann vielfältig genutzt werden: eben ein gut durchdachter Grundriss.
- 165,09 m²
- 9,60 x 11,60 m
- Satteldach, 35°
- Effizienzhaus-Stufe 40
- Photovoltaik
- Hybrid-Smart-Air 3.0
- Smart-Home-Plus-Ausstattung
Unser Multitalent haben wir in mehreren Varianten für Sie vorgeplant, zum Beispiel als Einfamilienhaus mit zwei Kinderzimmern.
- 169,50 m²
- 9,10 x 12,60 m
- Satteldach, 42°
- Effizienzhaus-Stufe 40
- Photovoltaik
- Hybrid-Smart-Air 3.0
- Smart-Home-Ausstattung: KNX-Basispaket
Schon von außen ein Hingucker: der Flachdach-Zwerchgiebel. Die Backup-Küche hat einen Zugang zum Garten. Und auf der Empore ist viel Platz für einen Schreibtisch oder eine Couch zum Relaxen.
- 173,65 m²
- 9,10 x 12,60 m
- Satteldach, 35°
- Effizienzhaus-Stufe 40
- Photovoltaik
- Hybrid-Smart-Air 3.0
- Smart-Home-Ausstattung: KNX-Basispaket
Das Maxime 700 wurde für maximale Flexibilität entworfen. Mit seiner großzügigen Wohnfläche und dem durchdachten Grundriss erfüllt es höchste Ansprüche. Die Architektur ist klar und harmonisch. Eine zentrale Erschließungsachse,
- 173,97 m²
- 10,10 x 11,60 m
- Satteldach, 35°
- Effizienzhaus-Stufe 40
- Photovoltaik
- Hybrid-Smart-Air 3.0
- Smart-Home-Plus-Ausstattung
Das Edition 630 verbindet moderne Architektur mit traditioneller Wohnkultur. Die Dachgestaltung verleiht dem Haus eine stilvolle Ästhetik, während die harmonische Fensteranordnung für Leichtigkeit sorgt.
- 177,65 m²
- 9,60 x 13,15 m
- Satteldach, 45°
- Effizienzhaus-Stufe 40
- Photovoltaik
- Hybrid-Smart-Air 3.0
- Smart-Home-Ausstattung: KNX-Basispaket
Das Edition 490 besticht durch die schicke Stadthausoptik und das markante Ziermauerwerk. Einzigartig wird es durch den asymmetrisch angeordneten Zwerchgiebel. Machen Sie »Ihr« Haus daraus: Mit Dachüberständen,
- 181,84 m²
- 9,10 x 13,55 m
- Satteldach, 37°
- Effizienzhaus-Stufe 40
- Photovoltaik
- Hybrid-Smart-Air 3.0
- Smart-Home-Ausstattung: KNX-Basispaket
Das Maxime 800 bietet nicht nur viel Platz, es ist auch eine imposante Erscheinung. Die Dachneigung von 35° in Kombination mit dem großen Eckfensterelement sorgt für eine kompakte, beschützende Ausstrahlung bei gleichzeitig luftiger Anmutung.
- 181,87 m²
- 10,60 x 11,60 m
- Satteldach, 35°
- Effizienzhaus-Stufe 40
- Photovoltaik
- Hybrid-Smart-Air 3.0
- Smart-Home-Plus-Ausstattung
Das Haus der Extraklasse hat einen großzügigen Grundriss. Ein Arbeitszimmer ist ebenso praktisch wie die räumliche Trennung von Technikraum und Backup-Küche.
- 199,57 m²
- 9,10 x 14,60 m
- Satteldach, 35°
- Effizienzhaus-Stufe 40
- Photovoltaik
- Hybrid-Smart-Air 3.0
- Smart-Home-Ausstattung: KNX-Basispaket
Die Diele mit angrenzender Garderobe sorgt für einen repräsentativen Empfang. In der Küche ist genug Platz für einen Küchenblock. Im Dachgeschoss haben die Eltern ihr großzügiges Reich: Das Bad mit Blick aus dem Turmerker ist der Hit.
- 224,59 m²
- 10,10 x 13,85 m
- Satteldach, 45°
- Effizienzhaus-Stufe 40
- Photovoltaik
- Hybrid-Smart-Air 3.0
- Smart-Home-Ausstattung: KNX-Basispaket
Der Viebrockhaus-Katalog
Bestellen Sie unseren kostenlosen Katalog, in welchem Sie auf über 300 Seiten alles Wissenswerte rund um unsere Häuser und Leistungen finden!