Die KfW senkt die Zinsen! 💶💥

Gratis-Katalog anfordern
Seitenansicht eines Einfamilienhauses mit Klinker und einer großen Power Roof auf dem Dach. Es handelt sich um das V3 Limited von Viebrockhaus
Einfamilienhaus

V3 Limited

Dieses Aktionshaus besticht durch modernen Charme und eine reduzierte, harmonische Architektur. Das klassische Satteldach in Kombination mit dem Power Roof verleiht dem Gebäude ein zeitlos-elegantes Erscheinungsbild. Der hohe Drempel erleichtert die Möblierung im Dachgeschoss. Im Inneren fällt sofort die Sichtachse von der Diele über den Essbereich bis in den Garten auf. Große Fensterflächen lassen viel Licht herein und schaffen eine warme, einladende Atmosphäre – ideal für genussvolle Stunden.

Sichern Sie sich mit dem V3 Limited zudem unser harmonisch abgestimmtes Wand‑ und Bodenpaket zum Bestpreis. Im Erdgeschoss verlegen wir für Sie einen hochwertigen Designboden, im Dachgeschoss einen angenehm weichen Teppichboden. Die Wände erstrahlen in elegantem Weiß. WC und Bäder sind stilvoll gefliest. Einfach einziehen!

Optional: Auch mit Einliegerwohnung planbar!

Limitiert auf 50 Häuser!

Hinweis: Bilder zeigen zum Teil auf- oder minderpreispflichtige Ausstattungsmerkmale.

Merkmale

  • 143,12 m²
  • 11,60 x 8,60 m
  • 1 Badezimmer
  • 3 Schlafzimmer
  • Satteldach
  • 40°
  • 162 cm
  • Effizienzhaus-Stufe 40
  • Kompakt-Smart-Air 2.0
  • Smart-Home-Ausstattung
  • Photovoltaik
Highlights

Großartig im Detail

Koch- & Essbereich

Wand und Boden Komplettpaket zum einmaligen Vorzugspreis
Power Roof beim Viebrockhaus V3 Limited
Gesimsfreie Stadthausoptik beim Viebrockhaus V3 Limited
360° Touren und Varianten

Ihr Lebensraum - Ihr Zuhause

360° Tour

V3 Limited mit ELW

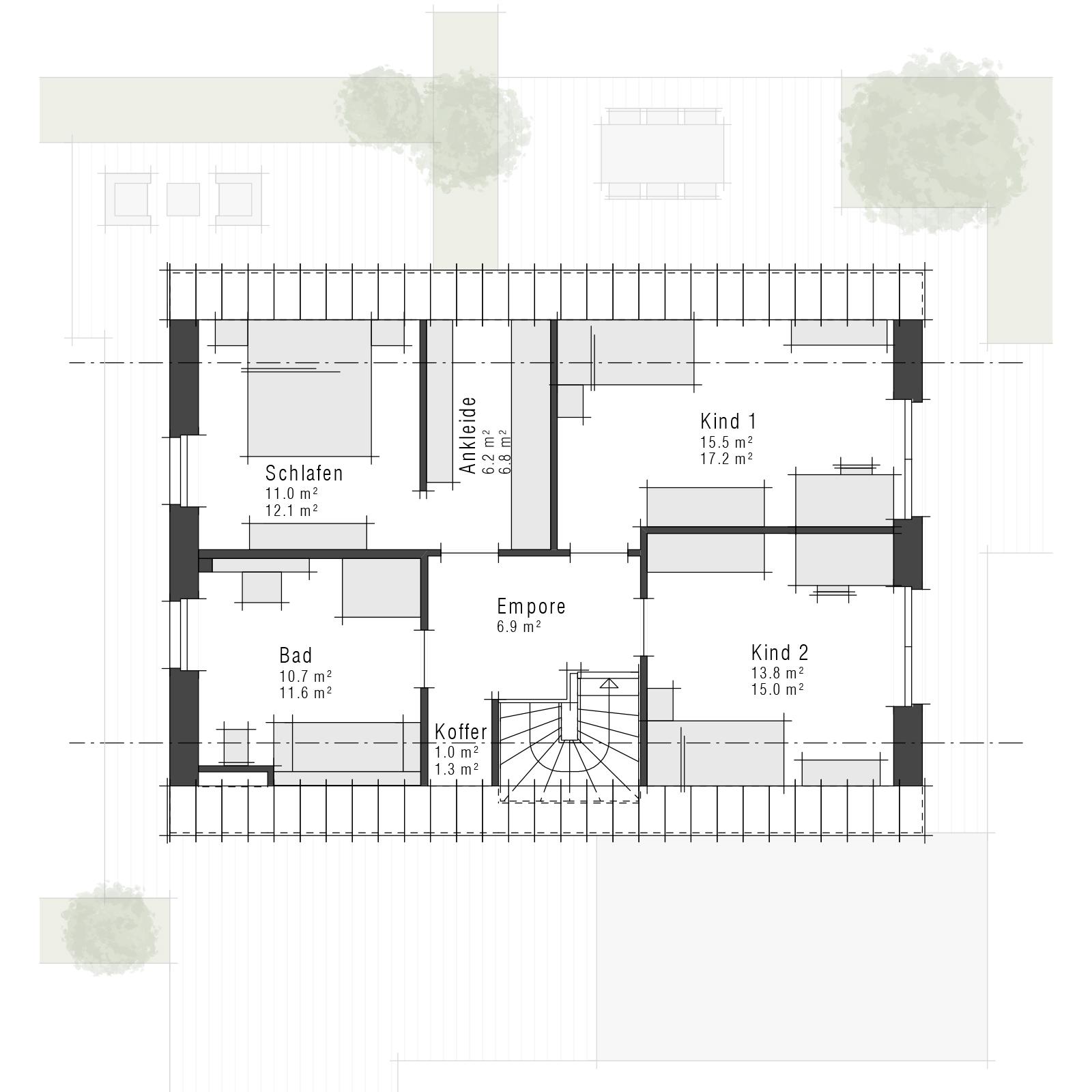
Grundriss

Von Grund auf durchdacht

Erdgeschoss

Beim Betreten fällt sofort die helle, offene Raumwirkung ins Auge, denn alle Bereiche sind miteinander verbunden. Die Diele mit Garderobe bietet viel Stauraum für Kleidung. Ein besonderes Plus ist der Haustechnikraum mit einer praktischen Back-up-Küche: Geschickt möbliert verschwindet die Haustechnik hinter durchdachten Schrankflächen. Zusätzlich gibt es ein großzügiges Arbeitszimmer.

Grundriss vom Erdgeschoss des V3 Limited - Einfamilienhaus von Viebrockhaus

Raum

Wohnfläche

Kochen/Essen/Wohnen

42,0 m²

Arbeiten

12,5 m²

Diele

11,0 m²

Garderobe

2,4 m²

WC

1,7 m²

HRT

9,0 m²

»Dieses Haus haben wir konsequent auf Wohnerlebnisse ausgerichtet. Die Frage lautete: Wie können wir den neuen BewohnerInnen den Einzug so komfortabel wie möglich machen? Neben der energetischen Unabhängigkeit durch das Power Roof ist das Innenraumkonzept unsere Antwort: Das bereits vorgedachte Wand‑ und Bodenpaket zum Sonderpreis macht den Einzug noch einfacher. Design, Technik und Funktion greifen hier nahtlos ineinander.«Dr.-Ing. Wiebke Brahms, Leitung Innovation Architektur, Head of Innovation Operations
Ähnliche Häuser

Entdecken Sie weitere Häuser dieser Kategorie

Wer ein eher kleines Grundstück besitzt und Platz sparen will, wird den Eingang auf der Giebelseite lieben– er ist auch gestalterisch ein Highlight. Der Grundriss bietet einige Raffinessen,

  • 114,76 m²
  • 8,10 x 10,00 m
  • Satteldach, 40°
  • Effizienzhaus-Stufe 40
  • Photovoltaik
  • Smart-Home-Ausstattung
  • Kompakt-Smart-Air 2.0
Frontansicht eines Einfamilienhauses mit Carport und Eingangstür. Es handelt sich um das V6 von Viebrockhaus
Loading...

Unser zukunftssicheres Familienhaus bietet alles, was eine vierköpfige Familie braucht - vor allem dank der durchdachten Grundrisse. Das klassische Satteldach mit den schönen Gesimsen an der Traufseite strahlt Gemütlichkeit aus.

  • 123,4 m²
  • 8,10 x 10,65 m
  • Satteldach, 40°
  • Effizienzhaus-Stufe 40
  • Photovoltaik
  • Kompakt-Smart-Air 2.0
  • Smart-Home-Ausstattung
Einfamilienhaus mit Ansicht aus dem Garten. Das Einfamilienhaus hat bodentiefe Fenster und nennt sich V5 von Viebrockhaus
Loading...

Das Maxime 200 ermöglicht ein offenes Wohnkonzept auf rund 127 Quadratmetern. Pfiffige Lösungen wie eine separate Garderobe und eine Ankleide sorgen für ein aufgeräumtes, luftiges Wohngefühl.

  • 126,61 m²
  • 8,10 x 11,00 m
  • Satteldach, 40°
  • Effizienzhaus-Stufe 40
  • Photovoltaik
  • Hybrid-Smart-Air 3.0
  • Smart-Home-Plus-Ausstattung
Seitenansicht eines Einfamilienhauses mit Klinkerstein und Terrasse von Viebrockhaus - Das Haus heißt Maxime 200
Loading...

Das kann sich sehen lassen: Das Maxime 120 kommt als zeitgemäße Interpretation des traditionellen Landhauses daher. Moderne Akzente werden durch die asymmetrische Fensteraufteilung und das Ziermauerwerk gesetzt.

  • 130,00 m²
  • 7,60 x 12,00 m
  • Satteldach, 48°
  • Effizienzhaus-Stufe 40
  • Photovoltaik
  • Hybrid-Smart-Air 3.0
  • Smart-Home-Plus-Ausstattung
Einfamilienhaus weiß verputzt mit grauen Elementen und zwei Terrassen. Das Haus heißt Maxime 120 von Viebrockhaus
Loading...

Das V1 ist ein klassisches Haus in zeitgemäßer Optik. Der Grundriss ist durchdacht und bietet neben Stauraum für Koffer sogar eine Ankleide. Dank des 142-Zentimeter-Drempels hält das Dachgeschoss viele Möblierungsmöglichkeiten bereit.

  • 138,47 m²
  • 8,10 x 11,74 m
  • Satteldach, 40°
  • Effizienzhaus-Stufe 40
  • Photovoltaik
  • Kompakt-Smart-Air 2.0
  • Smart-Home-Ausstattung
Seitenansicht eines Einfamilienhauses mit grauen Klinkersteinen. Das Einfamilienhaus ist das V1 von Viebrockhaus
Loading...

Das Haus ist dank des Giebeleingangs eine hervorragende Lösung für schmale Grundstücke. Die Räume auf der Gartenseite wirken luftig und hell: Dafür sorgen die großen Fenster.

  • 141,39 m²
  • 8,60 x 11,60 m
  • Satteldach, 40°
  • Effizienzhaus-Stufe 40
  • Photovoltaik
  • Hybrid-Smart-Air 3.0
  • Smart-Home-Plus-Ausstattung
Frontansicht eines Einfamilienhauses mit Klinkersteinen und einer kleinen Photovoltaikanlage. Es handelt sich um das Maxime 320 von Viebrockhaus
Loading...
Der Viebrockhaus-Katalog

Der Viebrockhaus-Katalog

Bestellen Sie unseren kostenlosen Katalog, in welchem Sie auf über 300 Seiten alles Wissenswerte rund um unsere Häuser und Leistungen finden!